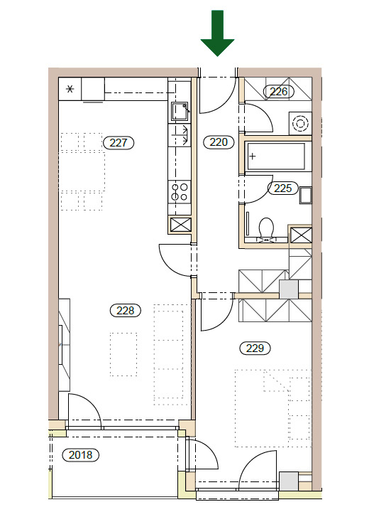
Nabídka bytů
garden lofts
Byt 2.02
patro:
2.NP
dispozice:
2+kk
obytná plocha:
59.58 m2
balkon:
5.26 m2
užitná plocha:
0.00 m2
cena:
8 485 419 Kč

