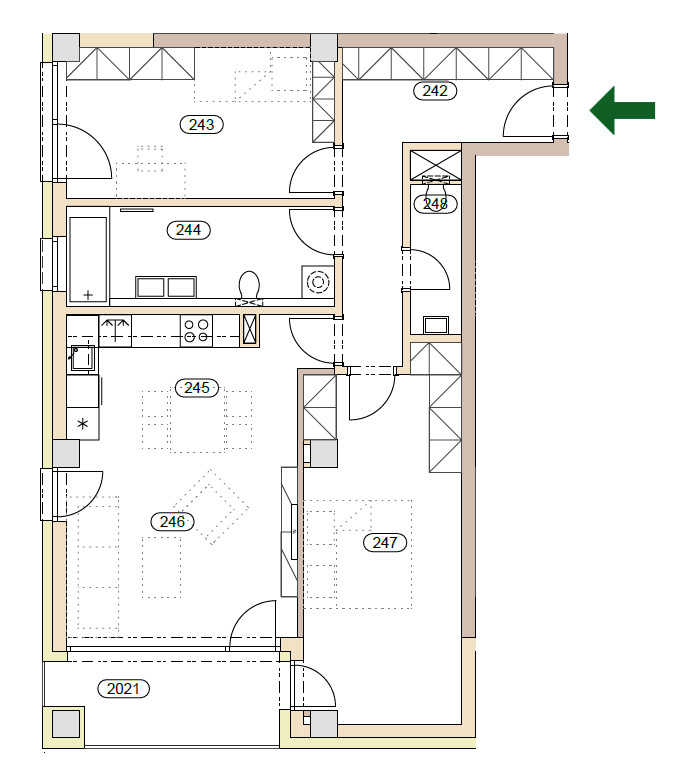
Nabídka bytů
garden lofts
Byt 2.05
patro:
2.NP
dispozice:
3+kk
obytná plocha:
80.89 m2
balkon:
6.40 m2
užitná plocha:
0.00 m2
cena:
9 877 178 Kč

