Nabídka bytů
garden lofts
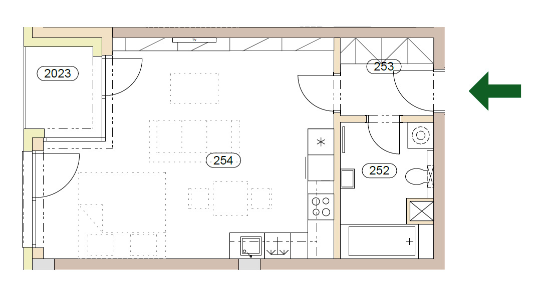
Byt 2.07
patro:
2.NP
dispozice:
1+kk
obytná plocha:
40.36 m2
balkon:
3.04 m2
užitná plocha:
0.00 m2
cena:
5 934 805 Kč

