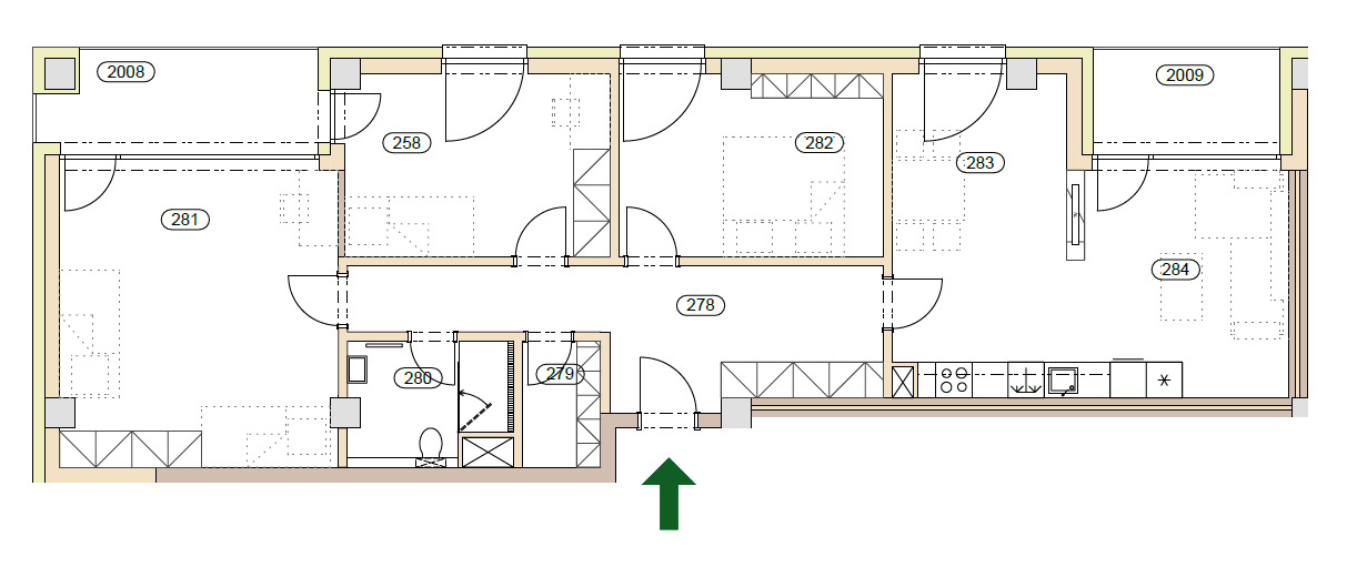
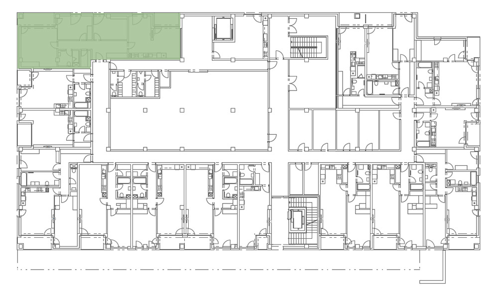
Nabídka bytů
garden lofts
Byt 2.08
patro:
2.NP
dispozice:
4+kk
obytná plocha:
101.60 m2
balkon:
11.95 m2
užitná plocha:
0.00 m2
cena:
na vyžádání

